Carleton Road, Pontefract

For Sale Offers in Excess of £650,000, £650,000

5 2 6
Enfields are proud to welcome to market The White House. A charming and unique property located in a highly sought-after area of Carleton, offering the perfect combination of character, space, and potential. The White House is a grand 18th Century five-bedroom detached home, steeped in original character features and brimming with charm. This remarkable property boasts stunning period details, including ornate fireplaces, wood panelling, and elegant flooring throughout. The spacious ground floor offers multiple reception rooms, including a bespoke Pine wood kitchen with a central breakfast island - ideal for both family living and entertaining. With ample space, this property provides endless possibilities for those looking to create their dream family home. The property enjoys its own private garden, offering a tranquil outdoor space, while a shared courtyard at the front of the property which provides ample off street parking. The courtyard, framed by stone boundary walls and wrought-iron gates, creates an inviting entrance for the home. With the quaint village of Darrington in one direction and the market town of Pontefract in the other, there’s a nice balance of choice for local amenities. Within walking distance are Carleton High School and The King’s School which are both well regarded secondary school options. Head to the heart of Darrington to visit the highly recommended local pub, ‘The Spread at Darrington’ which serves homemade gastro food. A highly regarded primary school, rural walking trails and a small convenience store with a Post Office are also on your doorstep. The nearest town is Pontefract which offers a choice of supermarkets and high street shops as well as restaurants, pubs and excellent public transport links including three train stations. Also here is New College, known as one of the best locations for higher education in the country. For families who need to travel, whether it be for work or pleasure, the motorway links from Darrington are outstanding with the A1, M1 and M62 all within close range. This makes travelling to places such as Leeds, York, Wakefield, Sheffield and Manchester a breeze.
  • Five Bedroom Detached Home
  • No Onward Chain
  • Two Bathrooms
  • Period Georgian Features Throughout
  • Good Sized Sunny Positioned Garden
  • Ideal For Large Families
  • Additional Cottage Next Door Available Would Suit Annex Style Living
  • Multiple Off Street Parking/Circular Driveway
  • Close to Primary And Secondary Schools
  • Close to Rail, Bus and Motorway Networks
  • Freehold: Energy Performance Rating D : Council Tax Band G
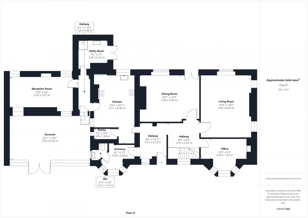
Floorplan for Carleton Road, Pontefract Floorplan for Carleton Road, Pontefract Floorplan for Carleton Road, Pontefract
EPC Graph for Carleton Road, Pontefract
Similar Property

Request a valuation

Find out how much your property is worth